Freemans Road, Tuffley, Gloucester

Sold Subject to Contract - Offers in excess of, £280,000

bedrooms 4bathrooms 2receptions 1

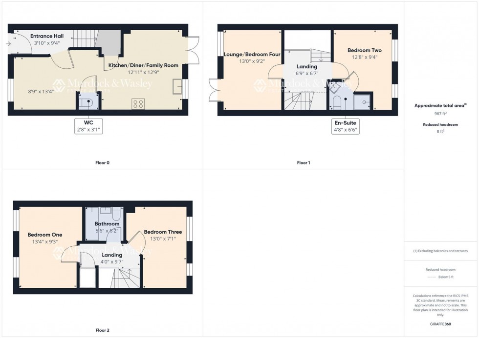
Entrance Hallway

Approached via double glazed front door, radiator, power point, stairs to first floor. Door to:

Open Plan Kitchen/Diner/Lounge

Upvc double glazed windows to both front and rear, with Upvc double glazed French doors opening to the garden. The kitchen is fitted with a range of eye and base level units with roll edge worktops, sink/drainer, electric oven with gas hob and extractor hood, and space for appliances. Additional features include a cupboard housing the combination boiler, two radiators, power points, television point, and an under-stairs storage cupboard. Door leading to cloakroom.

Cloakroom

Low level wc & pedestal wash hand basin.

First Floor Landing

Stairs leading to the second floor, with doors providing access to the lounge (or optional bedroom four) and bedroom two.

Lounge ( Potentially Bedroom 4)

Upvc double glazed windows to front with Juliet balcony, television point, radiator, and power points.

Bedroom 2

Two Upvc double glazed windows to rear, radiator, power points, and door leading to:

En-Suite

Shower cubicle, low-level WC, and pedestal wash hand basin, radiator, with partly tiled walls.

Second Floor Landing

Airing cupboard, power points, doors to both bedrooms & bathroom.

Bedroom 1

Two Upvc double-glazed windows to the front, radiator, and power points.

Bedroom 3

Two Upvc double-glazed windows to the rear, radiator, and power points.

Bathroom

Panelled bath, low-level WC, and pedestal wash hand basin, partly tiled walls, radiator.

Rear Garden

An enclosed garden, partly paved with an area laid to lawn, and gated rear access.

Tenure & Charges

Freehold.
Please note there is an estate management charge of £270 per annum.

Services

Mains water, gas, electricity & drainage.

Local Authority

Gloucester City Council- Band C

Awaiting Vendor Approval

Gloucester City Council- Band C

  • Three/ Four Bedroom Townhouse
  • Beautifully Presented Throughout
  • Remaining NHBC Warranty
  • Enclosed Rear Garden
  • Two Parking Spaces
  • EPC Rating B
Floorplan for Freemans Road, Tuffley, Gloucester
EPC Graph for Freemans Road, Tuffley, Gloucester

Similar Properties

SOLDSTC Boughton Way, Gloucester

Boughton Way, Gloucester

£296,000


instant online valuation

Get a valuation

Find out how much your property is worth