Boughton Way, Gloucester

Sold Subject to Contract - Offers over, £296,000

bedrooms 4bathrooms 2receptions 2

Entrance Hallway

Accessed via composite double glazed front door, power points, wall mounted radiator, stairs to first floor landing. Sliding door leads off:

Lounge

Tv point, telephone point, power points, wall mounted radiator, coving, vinyl flooring, stairs to first floor landing, front aspect upvc double glazed window. Door leads off:

Cloakroom

Suite comprising low level wc, pedestal wash hand basin with separate taps over, wall mounted radiator, vinyl flooring.

Kitchen/ Diner

Range of base, wall and drawer mounted units, roll edge worktop, one and a half bowl single drainer sink unit with a mixer tap over. Appliance points, power points, oven/ grill with four ring gas hob and extractor hood over. Space for tall fridge/ freezer, washing machine, tumble dryer and dining table. Worcester gas fired boiler, partly tiled walls, tiled flooring, radiator, wooden door to under stairs storage cupboard, rear aspect upvc double glazed window and French doors leading to the garden.

Landing

Power points, wall mounted radiator, stairs to second floor landing. Doors lead off:

Bedroom Two

Tv point, power points, wall mounted radiators, coving, front aspect upvc double glazed window and double glazed doors with Juliette balcony.

Bedroom Three

Tv point, power points, wall mounted radiator, door to under stairs storage cupboard, two rear aspect upvc double glazed windows.

Landing

Power points, radiator, access to loft space, wooden door to airing cupboard housing the pressurised cylinder. Doors lead off:

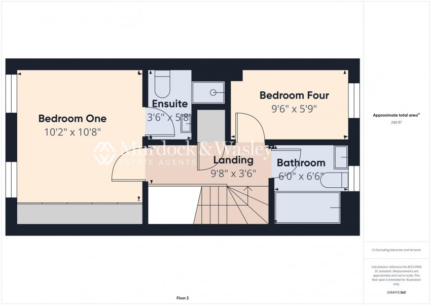
Bedroom One

Tv point, telephone point, power points, radiator, built in wardrobes with shelving and hanging rails, two front aspect upvc double glazed windows. Door to:

En Suite

Suite comprising step in shower cubicle with shower off the mains and folding glass door, low level wc, pedestal wash hand basin with separate taps over, partly tiled walls, wall mounted radiator, shaver point, vinyl flooring.

Bedroom Four

Power points, wall mounted radiator, rear aspect upvc double glazed window.

Bathroom

Suite comprising panelled bath with shower attachment, low level wc, pedestal wash hand basin with separate taps over, vinyl flooring, radiator, rear aspect upvc frosted double glazed window.

Outside

To the front of the property there is a tarmacadam driveway that provides off road parking for one vehicle which in turn leads to:

Garage

Accessed via up 'n' over door, power, lighting and personnel door leading to the rear garden.

To the rear there is a flagstone patio with outside tap which steps onto a flat lawn with a raised decked area suitable for garden furniture which is fully enclosed by wooden panelled fencing.

Tenure

Freehold

Local Authority

Gloucester City Council
Council Tax Band: B

Services

Mains water, gas, electric and drainage.

Awaiting Vendor Approval

Details are yet to be approved by the vendor and may be subject to change. Please contact the office for more information.

  • Four Bedroom End Of Terrace Townhouse
  • Master Bedroom with En-Suite
  • Flexible & Versatile Accommodation
  • Garage & Off Road Parking
  • Enclosed Rear Garden
  • Well Presented Throughout
  • GCH & UPVC Double Glazing Throughout
  • EPC Rating: C
Floorplan for Boughton Way, Gloucester
EPC Graph for Boughton Way, Gloucester

Similar Properties

SOLDSTC Freemans Road, Tuffley, Gloucester

Freemans Road, Tuffley, Gloucester

£280,000

SOLDSTC Enborne Close, Tuffley, Gloucester

Enborne Close, Tuffley, Gloucester

£350,000

SOLDSTC Denham Close, Tuffley, Gloucester

Denham Close, Tuffley, Gloucester

£350,000


instant online valuation

Get a valuation

Find out how much your property is worth