Broadclose Road, Down Hatherley, Gloucester

Sold Subject to Contract - Offers in excess of, £485,000

bedrooms 3bathrooms 1receptions 2

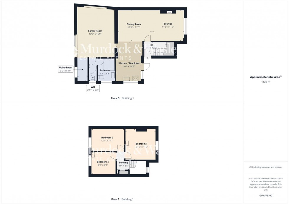
Entrance Hall

Accesed via solid wooden door, stairs to first floor landing, storage cupboard. Door to:

Lounge/ Diner

Tv point, telephone point, power points, radiator, coving, feature fireplace with gas fire inset, space for dining table, front aspect upvc aluminium double glazed window. Opening to:

Kitchen/ Breakast Room

Range of base and wall mounted units, laminate worksurfaces, stainless steel sink unit with a mixer tap over. Appliance points, power points, oven/ grill with four ring gas hob, space for fridge and breakfast table. Radiator, vinyl flooring, front and side aspect aluminium double glazed window.

Family Room

Power points, two radiators, space and plumbing for washing machine and tumbler drier. Baxi gas fired combination boiler, rear aspect aluminium double glazed window and sliding doors leading to the garden. Door to:

Bathroom

Suite comprising corner bath, low level wc, vanity wash hand basin with mixer tap over. Radiator, partly tiled walls, tiled flooring, side aspect aluminium double glazed window.

WC

Low level wc, tiled flooring, side aspect aluminium double glazed window.

Landing

Door to storage cupboard, front aspect upvc double glazed window. Doors lead off:

Bedroom One

Power points, radiator, two built in wardrobes, wash hand basin with mixer tap over, front aspect upvc double glazed window.

Bedroom Two

Power points, radiator, built in wardrobe, wash hand basin with mixer tap over, rear aspect upvc double glazed window.

Bedroom Three

Power points, radiator, wash hand basin with mixer tap over, rear aspect upvc double glazed window.

Outside

The property features a traditional red-brick façade with framed windows and a pitched slate roof, complemented by mature hedging and neatly kept lawns to the front.

A long driveway provides ample off-road parking and leads to a detached outbuilding/garage at the rear, ideal for storage or conversion potential (subject to permissions). The rear garden is beautifully maintained, laid mainly to lawn with mature trees and planting, providing a private and peaceful outdoor space perfect for families or those who enjoy gardening.

Enjoying picturesque views over open fields and farmland, this property presents an excellent opportunity to extend and personalise, all while remaining within easy reach of local amenities and transport links.

Tenure

Freehold

Local Authority

Tewkesbury Borough Council
Council Tax Band: D

Services

Mains water, gas, electricity and drainage.

Awaiting Vendor Approval

Details are yet to be approved by the vendor and may be subject to change. Please contact the office for more information.

  • Three Bedroom Sem-Detached House
  • No Onward Chain
  • Superb Plot with Ample Future Potential To Extend (subject to planning)
  • Private Tree Lined Road
  • Convenient Access To Cheltenham, Gloucester, Tewkesbury and the Motorway
  • Gas Central Heating
  • Large Driveway with Double Garage/ Workshop
  • EPC Rating: D
Floorplan for Broadclose Road, Down Hatherley, Gloucester
EPC Graph for Broadclose Road, Down Hatherley, Gloucester

Similar Properties

Wellsprings Road, Longlevens, Gloucester

Wellsprings Road, Longlevens, Gloucester

£390,000

SOLDSTC Cheltenham Road, Longlevens, Gloucester

Cheltenham Road, Longlevens, Gloucester

£395,000

SOLDSTC Park Avenue, Longlevens, Gloucester

Park Avenue, Longlevens, Gloucester

£400,000

SOLDSTC Lavington Drive, Longlevens, Gloucester

Lavington Drive, Longlevens, Gloucester

£425,000


instant online valuation

Get a valuation

Find out how much your property is worth