Marlstone Close, Gloucester

For Sale - Offers in excess of, £380,000

bedrooms 4bathrooms 2receptions 1

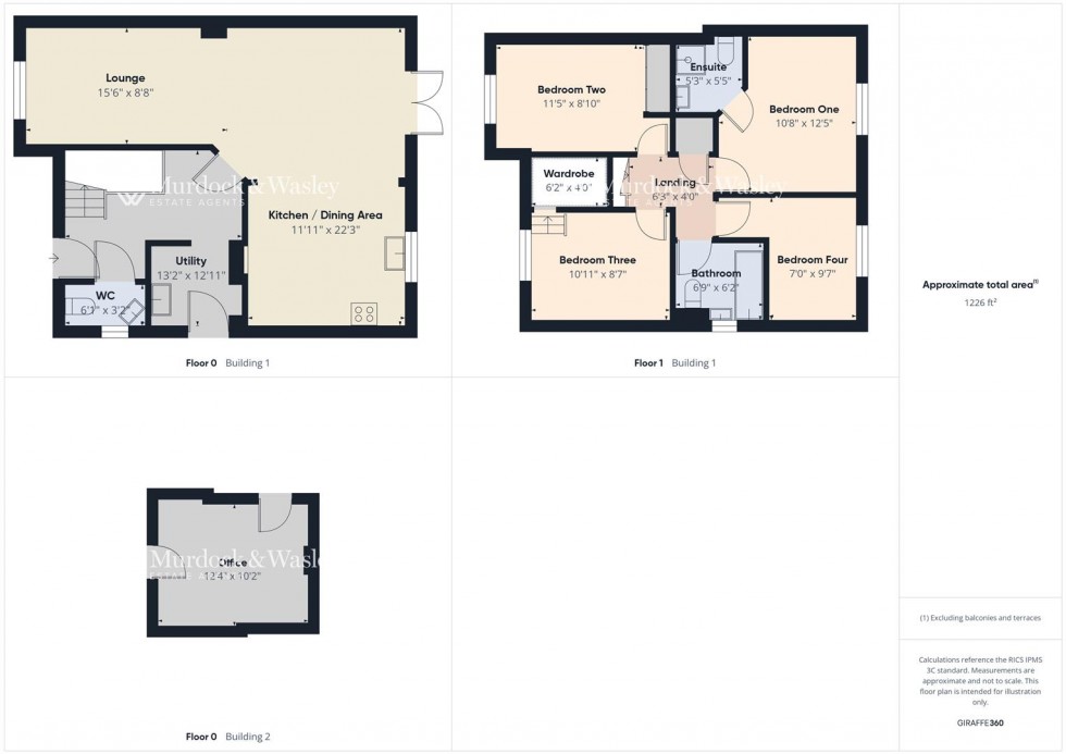
Entrance Hallway

Accessed via a composite front door, the entrance hall features laminate wood flooring, radiator, and recessed downlights. Stairs lead to the first floor with useful under-stairs storage, with doors providing access to the cloakroom and the open-plan kitchen/diner/family room, along with an opening leading to utility.

Cloakroom

UPVC frosted double glazed window to the side, low-level WC and pedestal wash hand basin, radiator, laminate flooring, and fuse panel.

Utility

Double glazed door to the side, base level units with roll-edge worktops, sink and drainer, space and plumbing for a washing machine, wall-mounted combination boiler, and power points.

Open Plan Kitchen/ Diner/ Lounge

UPVC double glazed windows to both the front and rear, with UPVC double glazed French doors to the rear. Fitted with eye and base level units with roll-edge worktops, sink and drainer, electric double oven with separate induction hob and hood, breakfast bar, and built-in dishwasher. Additional features include two radiators, television point, power points, laminate flooring, and an area laid to carpet.

First Floor Landing

Access to loft via hatch, airing cupboard, doors to all rooms.

Bedroom 1

Upvc double glazed windows to rear, radiator, power points, television point, door to:

En-Suite

Shower cubicle, low level wc & pedestal wash hand basin, heated towel rail, laminate flooring, extractor fan.

Bedroom 2

Upvc double glazed windows to front, radiator, power points, built in wardrobes.

Bedroom 3

Upvc double glazed windows to front, radiator, power points, stairs leading to a small secret play room.

Bedroom 4

Upvc double glazed windows to rear, radiator, power points.

Bathroom

Upvc frosted double glazed windows to side, panelled bath with shower over, low level wc & pedestal wash hand basin, heated towel rail, partly tiled walls.

Rear Garden

A beautifully maintained garden, partly paved with an area laid to lawn. The garden also features a play area surrounded by woodchip, gated side access, and a door leading to the converted garage.

Office/ Converted Garage

Accessed via a door, with power and lighting, loft hatch, and door leading to additional storage.

Tenure

Freehold.

Services

Mains water, gas, electricity & drainage.

Local Authority

Gloucester City Council- Band D

Awaiting Vendor Approval

Details are yet to be approved by the vendor and may be subject to change. Please contact the office for more information.

  • Four Bedroom Detached Home
  • Exceptionally Presented Throughout
  • Secluded Location
  • Two Bathrooms
  • Converted Garage Into Office
  • Enclosed & Beautifully Maintained Garden
  • EPC Rating TBC
Floorplan for Marlstone Close, Gloucester

Similar Properties

SOLDSTC Osprey Close, Abbeydale

Osprey Close, Abbeydale

£350,000

SOLDSTC Denham Close, Tuffley, Gloucester

Denham Close, Tuffley, Gloucester

£350,000

SOLDSTC Bodiam Avenue, Tuffley, Gloucester

Bodiam Avenue, Tuffley, Gloucester

£375,000

SOLDSTC Southfield Road, Gloucester

Southfield Road, Gloucester

£375,000


instant online valuation

Get a valuation

Find out how much your property is worth