Cromwell Road, Innsworth, Gloucester

For Sale £350,000

bedrooms 3bathrooms 2receptions 1

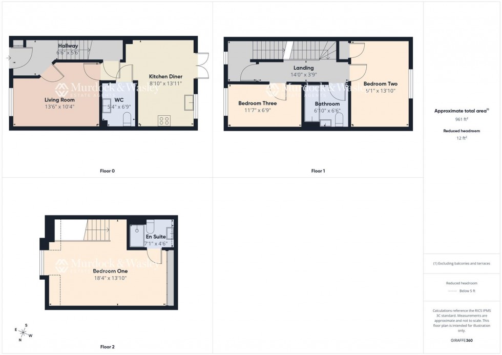
Entrance Hall

Accessed via composite door, power points, radiator, storage cupboard, stairs leading to first floor, doors leading to:

Lounge

Power points, tv points, radiator, front aspect upvc double glazed window, door leading to:

Kitchen Diner

Range of base, wall and drawer mounted units, one and a half sink with drainer and mixer tap over, appliance points, power points, four ring electric hob with extractor hood over, integral dishwasher, fridge/freezer and double oven. radiator, inset ceiling spotlights, storage cupboard, rear aspect upvc double glazed window, upvc french doors leading to garden, door leads to:

WC

Power points, low level WC, wash hand basin with storage below, plumbing for washing machine, inset ceiling spotlights, radiator.

Landing

Radiator, power points, stairs leading to 2nd floor.

Bedroom Two

Power points, tv point, built in storage cupboard, radiator, rear aspect upvc double glazed window.

Bedroom Three

Power points, tv point, radiator, front aspect upvc double glazed window

Bathroom

Suite comprising low level wc, panelled bath with mixer taps and shower over, pedestal hand wash basin, radiator, inset ceiling spotlights, partly tiled walls.

Bedroom One

Power points, tv point, radiator, built in wardrobes, front aspect upvc double glazed window, upvc velux window, door leads to:

En Suite

Suite comprising low level wc, step in cubicle with shower over, hand wash basin with mixer taps over and storage below, radiator, partly tiled walls, upvc velux window.

Outside

To the side of the property is a driveway providing parking for two vehicles, garage with up and over door, a wooden gate provides access to rear garden, the driveway also boasts electric car charging port.

To the rear of the property a tiled patio perfect for outdoor seating and entertaining, leads to a level lawn with separate area at the back finished with decorative bark.
Further features include outdoor lighting and power.

Garage

Accessed via up and over door with power and lighting.

Services

Mains water, gas, electricity and drainage

Tenure and Charges

Freehold

Estate Charge does not start until completion of site, estimated 2027/2028

Local Authority

Tewkesbury Borough Council:

Council Tax Band C

Awaiting Vendor Approval

Details are yet to be approved by the vendor and may be subject to change.
Please contact the office for more information.

  • Beautifully Presented Three Bedroom Townhouse
  • Immaculate Throughout
  • Garage And Off Road Parking
  • Spacious Master Suite
  • Convenient Location For M5 Motorway
  • Enclosed Low Maintenance Rear Garden
  • 5 Year NHBC Warranty
  • EPC Rating B
Floorplan for Cromwell Road, Innsworth, Gloucester
EPC Graph for Cromwell Road, Innsworth, Gloucester

Similar Properties

SOLDSTC Montgomery Close, Hucclecote, Gloucester

Montgomery Close, Hucclecote, Gloucester

£285,000

SOLDSTC Hawthorne Close, Brockworth, Gloucester

Hawthorne Close, Brockworth, Gloucester

£294,000

SOLDSTC Gilpin Avenue, Hucclecote, Gloucester

Gilpin Avenue, Hucclecote, Gloucester

£300,000

SOLDSTC Donaldson Drive, Brockworth, Gloucester

Donaldson Drive, Brockworth, Gloucester

£300,000


instant online valuation

Get a valuation

Find out how much your property is worth