Goldsmith Road, Churchdown, Gloucester

Sold Subject to Contract £465,000

bedrooms 4bathrooms 2receptions 1

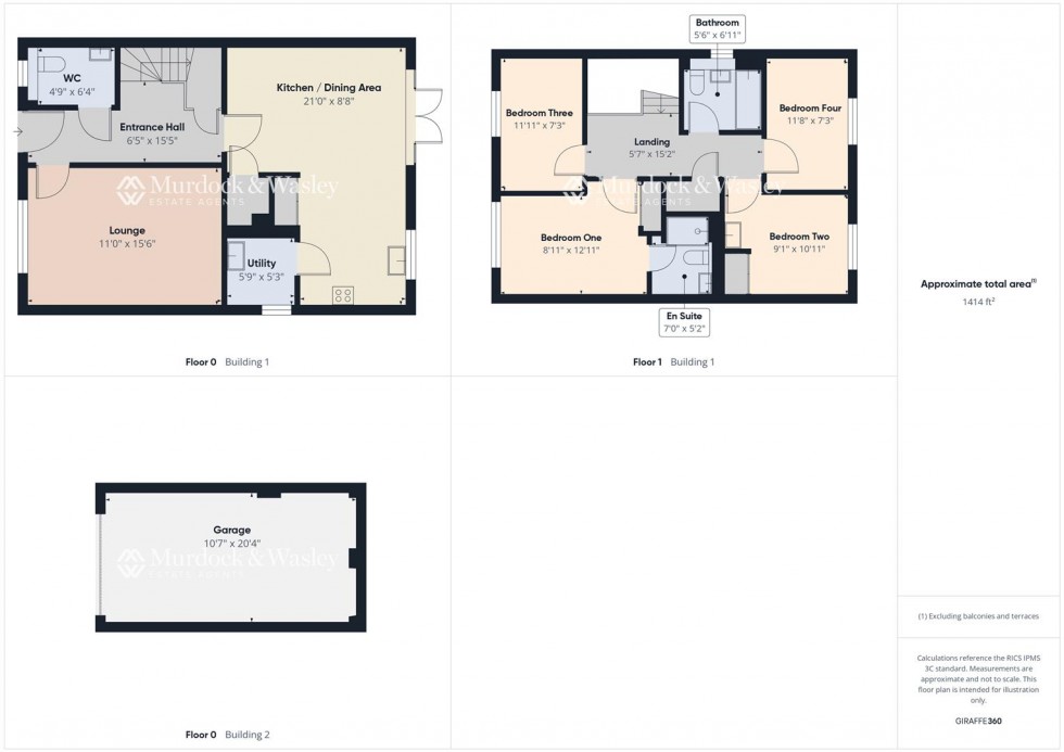
Entrance Hall

Accessed via upvc double glazed door, power points, wall mounted radiator, custom wall panelling, stairs to landing. Doors lead off:

Lounge

Television point, power points, wall mounted radiator, custom wall panelling, front aspect upvc double glazed window.

Wash Cloakroom

Suite comprising low level wc, pedastal wash hand basin with mixer tap over, wall mounted radiator, partly tiled walls, front aspect frosted upvc double glazed window.

Kitchen / Dining Area

Range of base, drawer and wall mounted units, composite sink unit with mixer tap over, laminate worksurfaces. Appliance points, power points, eye level double oven/grill, four ring gas hob with extractor hood over. Integral dishwasher, space for large fridge/freezer and dinging table. Breakfast bar with laminate worktops and storage below. Wall mounted radiator, laminate flooring, door to storage, rear aspect upvc double glazed window and rear aspect upvc double glazed french door leading to the garden.

Utility Room

Range of base, wall mounted units, laminate worksurfaces, composite sink unit with mixer tap over. Appliance points, power points. Space for washing machine, wall mounted boiler, wall mounted radiator, side aspect upvc double glazed window.

Landing

Power points, access to loft via hatch. Doors lead off:

Bedroom One

Power points, wall mounted radiator, custom wall panelling, built in wardrobe, front aspect upvc double glazed window. Door leads off:

En Suite

Suite comprising low level wc, pedestal wash hand basin with mixer tap over, double step in cubicle with shower over, inset ceiling spotlights, partly tiled walls, wall mounted heated towel rail, tiled flooring.

Bedroom Two

Power points, wall mounted radiator, built in wardrobe, rear aspect upvc double glazed window.

Bedroom Three

Power points, wall mounted radiator, front aspect upvc double glazed window.

Bedroom Four

Power points, wall mounted radiator, rear aspect upvc double glazed window.

Bathroom

Suite comprising low level wc, pedastal wash hand basin with mixer tap over, panelled bath with taps and shower over, wall mounted heated towel rail, partly tiled walls, tiled flooring, side aspect frosted upvc double glazed window.

Garage

Accessed via up'n'over door with power & lighting.

Outside

To the front of the property a garden laid to decorative stone is enclosed by low level hedgerow with a flagstone path leading to the front door.

To the side of the property a driveway laid to tarmacadam provides off road parking for at least two vehicles directly in front of the garage. A wooden gate provides access to the rear garden. An EV charging point is also included.

To the rear of the property a porcelain slab patio provides space for garden furniture which in turn leads down to a garden partly laid to artificial grass and partly laid to decorative stone. The garden is bordered by raised flower beds and enclosed by wooden fencing. A further feature is a cold water tap.

Services

Mains water, gas, electricity & drainage.

Tenure & Charges

Freehold

Estate Management Charge: Circa £100 Per Annum.

Local Authority

Tewkesbury Borough Council
Tax Band: E

Awaiting Vendor Approval

Details are yet to be approved by the vendor and may be subject to change. Please contact the office for more information.

  • Four Double Bedroom Detached Home
  • Fantastically Presented Throughout
  • Remaining NHBC Wararanty
  • Open Plan Kitchen Dining Area
  • Wash Cloakroom & Utility Room
  • Close Proximity To Highly Regarded Schools
  • Great Access Links Via M5 Junction 11
  • GCH & UPVC Double Glazed Throughout
  • EPC Rating: B
Floorplan for Goldsmith Road, Churchdown, Gloucester
EPC Graph for Goldsmith Road, Churchdown, Gloucester

Similar Properties

SOLDSTC Spinners Road, Brockworth, Gloucester

Spinners Road, Brockworth, Gloucester

£387,500

SOLDSTC Farmhouse Road, Gloucester

Farmhouse Road, Gloucester

£415,000

Baxter Road, Churchdown, Gloucester

Baxter Road, Churchdown, Gloucester

£460,000

Larkhay Road, Hucclecote, Gloucester

Larkhay Road, Hucclecote, Gloucester

£485,000


instant online valuation

Get a valuation

Find out how much your property is worth