Sandhurst Lane, Sandhurst, Gloucester

Sold Subject to Contract - Offers in excess of, £325,000

bedrooms 2bathrooms 1receptions 2

Entrance Hall

Accessed via wooden door. Door to:

Lounge

Tv point, power points, feature fireplace with brick surround, traditional column radiator, wooden door to understairs storage cupboard, stairs to first floor landing, front aspect upvc double glazed window with shutter blinds.

Kitchen/Diner

Range of base, drawer and wall mounted units, laminate worksurfaces, single sink unit with separate taps over. Appliance points, power points, integral cooker, four ring electric hob with extractor hood over, space for dishwasher, fridge/freezer and dining table and chairs. Partly tiled walls, radiator, wooden door to pantry, vinyl flooring, rear aspect upvc double glazed windows.

Rear Entrance

Vinyl flooring. Door to:

Utility

Base unit with laminate worktop, single sink unit with separate taps over, power points, space for appliances, vinyl flooring, side aspect upvc double glazed window.

Landing

Power point, access to loft space. Doors lead off:

Bedroom One

Tv point, power points with USB sockets, feature fireplace, radiator, inset ceiling spotlights, front aspect upvc double glazed window.

Bedroom Two

Power points, feature fireplace, traditional column radiator, decorative wall panelling, inset ceiling spotlights, rear aspect upvc double glazed window.

Bathroom

Suite comprising panelled bath with shower off the mains over, low level wc, vanity wash hand basin with storage below. Party tiled walls, two recessed storage shelves, heated towel rail, inset ceiling spotlights, tiled flooring, rear aspect upvc frosted double glazed window.

Outside

The front of the property is accessed via a wooden gate with a pathway which guides you to the front door, framed by a mature hedge that offers an added sense of privacy and greenery.

The property boasts a generously sized, enclosed garden that wraps around the house with an open outlook to the surrounding countryside, providing a peaceful and picturesque retreat. The garden is mainly laid to lawn with a patio area perfect for outdoor dining and entertaining, complete with space for outdoor furniture.

Agents Notes

We have been advised that a planning application has been granted for a double storey extension to add either one or two bedrooms depending on preference. For more details, please refer to Tewkesbury's Borough Council Planning Portal using reference: 24/00796/FUL.

Tenure

Freehold.

Local Authority

Tewkesbury Borough Council.
Council Tax Band: C

Services

Mains water, drainage. electricity.
Oil fired central heating.

Awaiting Vendor Approval

Details are yet to be approved by the vendor and may be subject to change. Please contact the office for more information.

  • Two Double Bedroom Semi-Detached Cottage
  • No Onward Chain
  • Situated In A Popular Village Location
  • Planning Permission To Extend
  • Fantastic Views Over Surrounding Countryside
  • Character Features Throughout
  • Rarely Available
  • EPC Rating: E
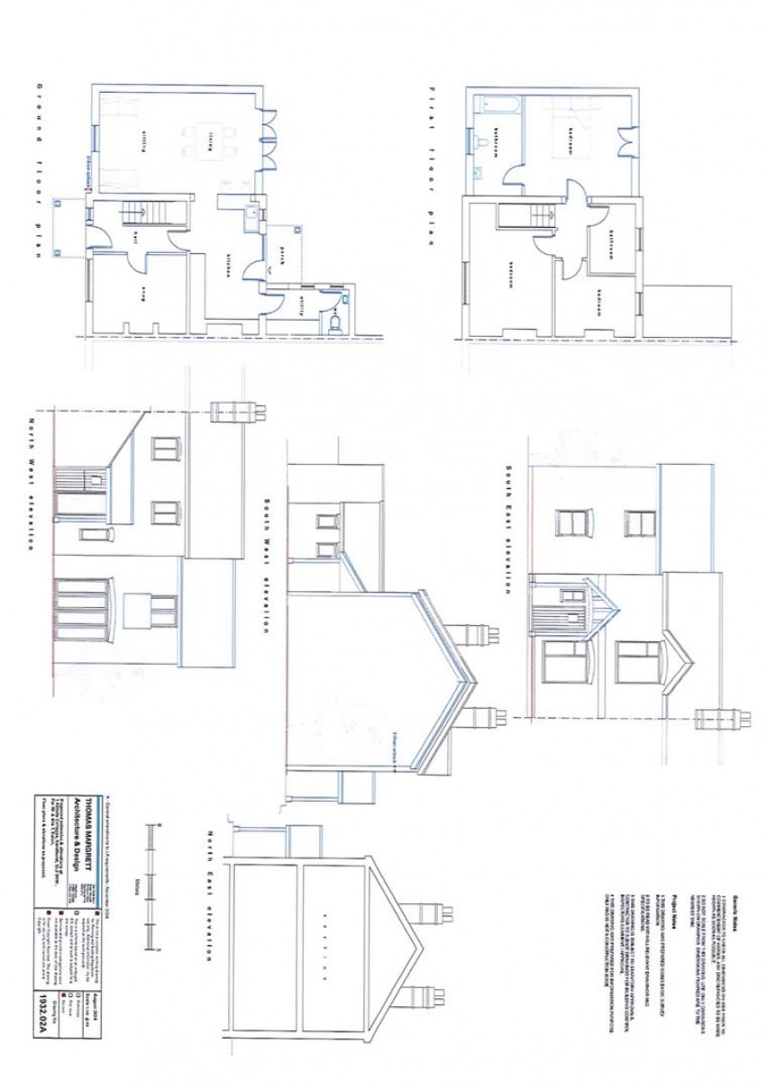
Floorplan for Sandhurst Lane, Sandhurst, Gloucester
EPC Graph for Sandhurst Lane, Sandhurst, Gloucester

Similar Properties

Hyatt Close, Longford

Hyatt Close, Longford

£260,000

SOLDSTC Durand Close, Longlevens, Gloucester

Durand Close, Longlevens, Gloucester

£275,000

Woolstrop Way, Quedgeley, Gloucester

Woolstrop Way, Quedgeley, Gloucester

£275,000

Montfort Road, Longlevens, Gloucester

Montfort Road, Longlevens, Gloucester

£275,000


instant online valuation

Get a valuation

Find out how much your property is worth