Colin Road, Barnwood, Gloucester

For Sale £360,000

bedrooms 3bathrooms 1receptions 2

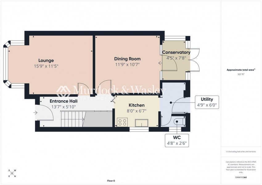
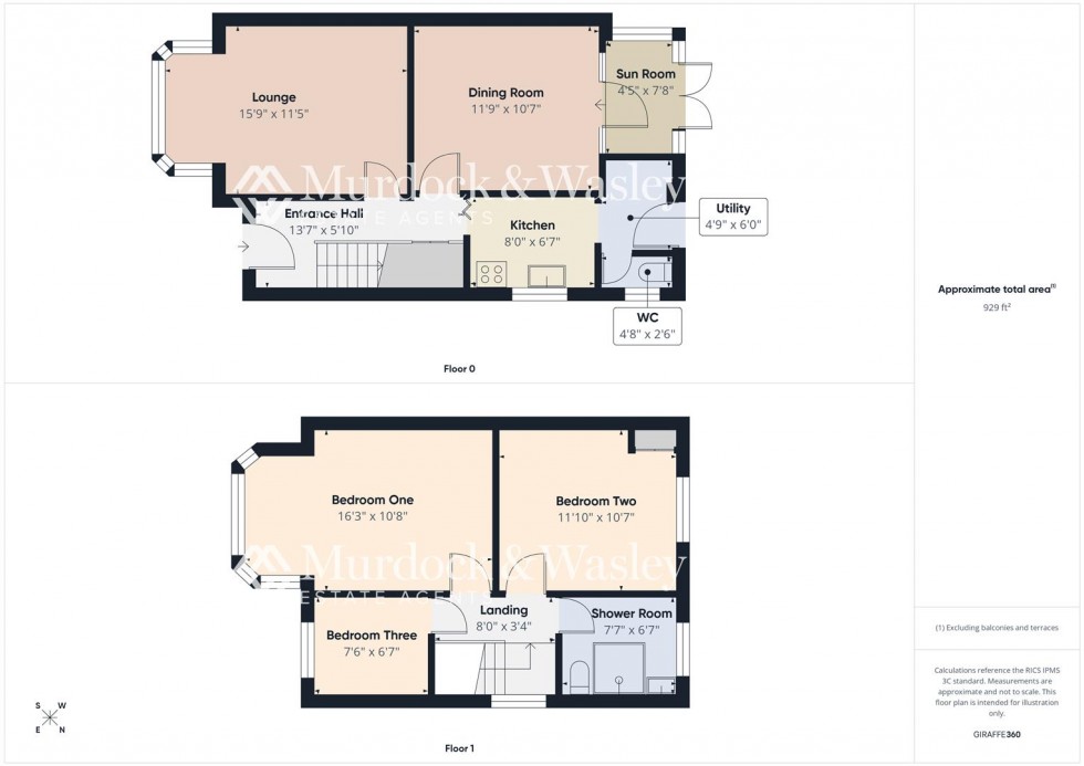
Entrance Hall

Accessed via composite double glazed door, power point, telephone point, radiator, picture rail, stairs to first floor landing, under stairs storage cupboard. Doors lead off:

Kitchen

Range of base, wall and drawer mounted units, laminate worksurfaces, stainless steel sink unit with a mixer tap over. Appliance points, power points, double oven/ grill with four ring gas hob and extractor hood over. Space for washing machine, radiator, partly tiled walls, inset ceiling spotlights, side aspect upvc double glazed window. Opening to:

Utility

Appliance points, power points, space for tall fridge/ freezer and tumbler drier, rear aspect upvc double glazed door to garden. Door to:

WC

Low level wc, tiled flooring, side aspect upvc double glazed window.

Dining Room

Power points, radiator, picture rail, feature fireplace with gas fire inset, rear aspect wooden glazed door to:

Sun Room

Of brick base, wooden construction and a polycarbonate roof.

Lounge

Tv point, power points, radiator, picture rail, feature fireplace with gas fire inset, front aspect upvc double glazed bay window.

Landing

Access to loft space with drop down ladder. Side aspect upvc double glazed window. Doors lead off:

Bedroom One

Power points, radiator, picture rail, front aspect upvc double glazed bay window.

Bedroom Two

Power points, radiator, picture rail, airing cupboard housing the Vaillant gas fired combination boiler, rear aspect upvc double glazed window.

Bedroom Three

Power points, radiator, picture rail, front aspect upvc double glazed window.

Bathroom

Suite comprising step in shower cubicle with shower off the mains, low level wc, vanity wash hand basin with mixer tap over and storage below. Heated towel rail, partly tiled walls, upvc wall panelling, rear aspect upvc double glazed window.

Outside

To the front of the property is a tarmacadam driveway providing convenient off-road parking, with a wooden side gate offering access to the rear garden.

The west-facing rear garden enjoys afternoon and evening sun and is laid out for ease of maintenance, featuring a flat lawn, paved patio areas ideal for outdoor dining, and a raised decking area with a timber shed and outside tap. Fully enclosed, the garden offers a good degree of privacy and is perfect for relaxing or entertaining.

Tenure

Freehold

Local Authority

Gloucester City Council
Council Tax Band: D

Services

Mains water, gas, electricity and drainage.

Awaiting Vendor Approval

Details are yet to be approved by the vendor and may be subject to change. Please contact the office for more information.

  • Detached 1930's Three Bedroom House
  • No Onward Chain
  • Enclosed Garden
  • Driveway
  • Sought After Location
  • Cloakroom & Utility
  • EPC Rating: tbc
Floorplan for Colin Road, Barnwood, Gloucester
EPC Graph for Colin Road, Barnwood, Gloucester

Similar Properties

NEW Chatsworth Avenue, Tuffley, Gloucester

Chatsworth Avenue, Tuffley, Gloucester

£289,950

SOLDSTC Stewarts Mill Lane, Abbeymead, Gloucester

Stewarts Mill Lane, Abbeymead, Gloucester

£290,000

SOLDSTC Goldsborough Close, Gloucester

Goldsborough Close, Gloucester

£300,000

SOLDSTC Eagle Way, Abbeydale, Gloucester

Eagle Way, Abbeydale, Gloucester

£300,000


instant online valuation

Get a valuation

Find out how much your property is worth