Pirton Lane, Churchdown, Gloucester

Sold Subject to Contract - Offers in excess of, £600,000

bedrooms 4bathrooms 3receptions 2

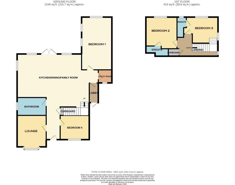
Entrance Hallway

Approached via Upvc double glazed front door. Solid oak doors to bedrooms 3,4 & bathroom, recessed down lights, power points.

Open Plan Kitchen/Diner/Family Room (7.54m x 6.10m)

UPVC double glazed windows and patio doors to rear aspect leading to garden. Five double, wall mounted radiators. A range of eye level and base units including breakfast bar with laminate worktops over, 1 ½ bowl sink and drainer unit. Extractor hood and gas cooker point. Integral fridge freezer and dishwasher. Door to utility & living room, staircase to first floor.

Utility

UPVC double glazed window to front aspect. Single wall mounted radiators. Combination boiler. Work surfaces Plumbing for washing machine. Spotlights to ceiling. Laminate flooring.

Lounge (3.78m x 3.43m)

UPVC double glazed bay style window to front aspect. Double wall mounted radiator. Television point. Spotlights to ceiling.

Family Bathroom

UPVC double glazed frosted window to side aspect. Single wall mounted radiator. Modern white suite comprising of a low level W.C, vanity wash hand basin, tiled splash backs, tiled shower cubicle with mains shower head over. Panelled bath with mixer tap and shower attachment. Part tiled walls, extractor fan, heated chrome towel rail. Spotlights to ceiling.

Bedroom 1 (6.20m x 3.53m)

UPVC double glazed window to rear aspect. Two double wall mounted radiators and television point. Spotlights to ceiling.

Bedroom 4 (3.40m x 2.84m)

UPVC double glazed windows to front aspect. Double wall mounted radiator. Television point. Spotlights to ceiling, built in wardrobes.

First Floor Landing

UPVC double glazed window to side aspect. Solid oak doors to all rooms. Storage cupboard. Spotlights to ceiling.

Bedroom 2 (3.40m x 3.40m)

UPVC double glazed window to rear aspect. Double wall mounted radiator. Television point. Spotlights to ceiling.

En-Suite

Tiled shower cubicle, low level W.C, vanity basin, tiled splashbacks. Chrome heated towel rail. Extractor fan. Spotlights to ceiling.

Bedroom 3 (3.68m x 2.95m)

UPVC double glazed windows to rear aspect. Double wall mounted radiator. Television point. Spotlights to ceiling.

En-Suite

UPVC double glazed window to rear aspect. Tiled shower cubicle, low level W.C, vanity basin with tiled splash backs. Heated chrome towel rail. Spotlights to ceiling.

Rear Gardens

Fantastic size which is partly paved, partly laid to artificial lawn, mainly laid to lawn, shed, gym, cold water tap.

Tenure

Freehold.

Services

Mains water, gas, electricity & drainage.

Local Authority

Tewkesbury Council- Band E

Awaiting Vendor Approval

These details are yet to be approved by the vendor and may be subject to change. Please contact the office for more information.

  • Four Double Bedroom Family Home
  • Beautifully Presented Throughout
  • Expansive Gardens
  • Three Bathrooms
  • Open Plan Living
  • EPC Rating D
Floorplan for Pirton Lane, Churchdown, Gloucester
EPC Graph for Pirton Lane, Churchdown, Gloucester

Similar Properties

NEW Larkhay Road, Hucclecote, Gloucester

Larkhay Road, Hucclecote, Gloucester

£485,000

SOLDSTC Hillview Avenue, Brockworth, Gloucester

Hillview Avenue, Brockworth, Gloucester

£600,000


instant online valuation

Get a valuation

Find out how much your property is worth