Barton Street, Gloucester

Sold Subject to Contract £235,000

bedrooms 3bathrooms 3receptions 2

Shop

Entrance

Accessed via front door, double glazed windows to both front & rear, power & lighting. Door to inner hall.

Inner Hall

Upvc double glazed door to side, door to further room & cloakroom.

Cloakroom

Low level wc, partly tiled walls.

Rear Room

Double glazed windows to side, power, lighting & further storage cupboard.

Communal Entrance To Flats

Accessed via front door, stairs to all floors, storage cupboard.

Flat 1 ( First Floor)

Hallway

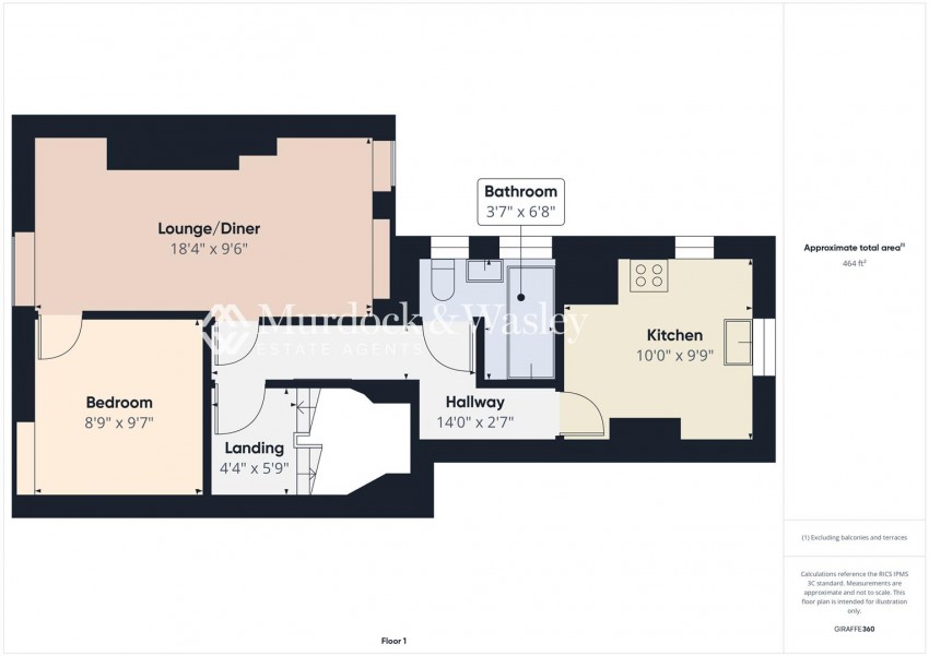
Approached via front door, laminate flooring, power points, doors to kitchen, bathroom & lounge/diner.

Kitchen

Double glazed windows to side & rear, eye & base level units with roll edge work tops, sink/drainer, electric oven with induction hob & hood, space for further appliances, laminate flooring.

Lounge/Diner

Double glazed windows to both front & rear, television point, power points, laminate flooring.

Bedroom

Double glazed windows to front, power points.

Bathroom

Frosted window to side, panelled bath with shower over, low level wc & pedestal wash hand basin, partly tiled walls.

Flat 2 ( Top Floor)

Accessed via front door, loft hatch, doors to all rooms.

Kitchen

Double glazed window to rear, eye & base level units with roll edge work tops, sink/drainer, cooker point, space for further appliances, storage cupboard.

Lounge

Double glazed window to front, television point, power points.

Bedroom

Window to front, power points.

Bathroom

Panelled bath with shower over, low level wc & pedestal wash hand basin, extractor fan.

Rear Garden

An enclosed rear garden which is partly paved mainly laid to over grown garden.

Tenure

We are selling the full freehold however the shop is agreed on a 4 year lease to someone.

The flats are both currently tenanted- tenants not been served notice as of yet.

The rent is £750 shop.
Flat 1- £700
Flat 2- £750

Services

Mains water, electricity & drainage.

Local Authority

Shop- Band A
Flat 1- Band A
Flat 2- Band A

Awaiting Vendor Approval

Details are yet to be approved by the vendor and may be subject to change. Please contact the office for more information.

  • Commercial Unit & Two Flats
  • City Centre Location
  • No Onward Chain
  • Requires Updating Throughout
  • Private Rear Garden
  • EPC Rating E
EPC Graph for Barton Street, Gloucester

Similar Properties

Kitchener Avenue, Linden, Gloucester

Kitchener Avenue, Linden, Gloucester

£215,000

SOLDSTC Knowles Road, Gloucester

Knowles Road, Gloucester

£215,000

SOLDSTC Highworth Road, Gloucester

Highworth Road, Gloucester

£225,000

SOLDSTC Melbourne Street East, Gloucester

Melbourne Street East, Gloucester

£250,000


instant online valuation

Get a valuation

Find out how much your property is worth