Atkyns Drive, Tuffley, Gloucester

For Sale - Offers in excess of, £240,000

bedrooms 3bathrooms 1receptions 1

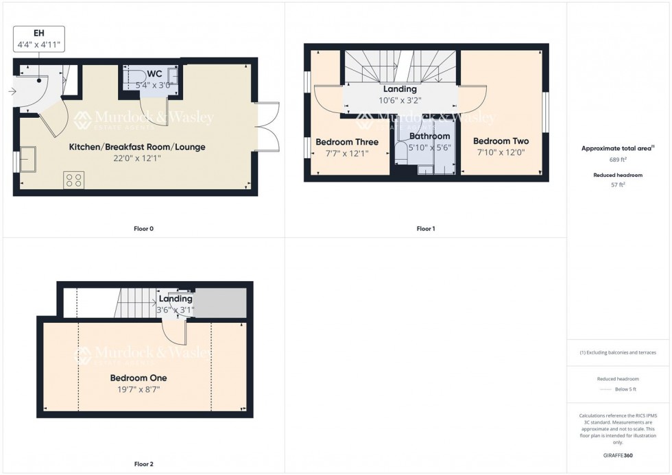
Entrance Hall

Accessed via composite door, power points, radiator, mirrored vanity cupboard, laminate flooring, stairs to first floor landing. Door to:

Kitchen/Breakfast Room/Lounge

Range of base, drawer and wall mounted units, single sink unit with mixer tap over, laminate worksurfaces. Appliance points, power points, integral cooker, four ring gas hob with extractor hood over, space for fridge/freezer. Two radiators, laminate flooring, front aspect upvc double glazed window and rear aspect upvc double glazed French doors leading to the garden.

Cloakroom

Low level wc, pedestal wash hand basin with mixer tap over, tiled splashback, radiator, laminate flooring.

First Floor Landing

Power points, radiator, stairs to second floor landing. Doors lead off:

Bedroom Two

Power points, radiator, front aspect upvc double glazed window.

Bedroom Three

Power points, radiator, front aspect upvc double glazed window.

Bathroom

Suite comprising panelled bath with shower off the mains over, vanity wash hand basin with mixer tap over and storage below, low level wc. Partly tiled walls, radiator, laminate flooring.

Second Floor Landing

Power points, door to storage cupboard and door to:

Bedroom One

Power points, radiator, access to loft space, two velux rooflights.

Outside

To the front of the property, there is a gravel garden and a paved pathway leads to the front door which is sheltered by a canopy porch.

To the rear, the property enjoys a beautifully maintained, low-maintenance south-westerly facing garden. It features a patio area ideal for outdoor furniture and relaxation, complemented by an artificial lawn for year-round greenery. A stepping-stone pathway leads to a wooden gate, giving access to the off-road parking area with space for two vehicles. Further benefits include an outdoor tap, power supply, and a wooden shed.

Tenure & Charges

Freehold.
Estate Management Charge: £199.00 per annum.

Services

Mains water, gas, electricity & drainage.

Local Authority

Gloucester City Council.
Council Tax Band: C

Awaiting Vendor Approval

Details are yet to be approved by the vendor and may be subject to change. Please contact the office for more information.

  • Three Bedroom Mid Terrace House
  • No Onward Chain
  • Open Plan Kitchen/Breakfast Room/Lounge
  • South/Westerly Facing Enclosed Rear Garden
  • Two Off Road Parking Spaces
  • UPVC & Double Glazing Throughout
  • Ideal For First Time Buyers
  • EPC Rating: B
Floorplan for Atkyns Drive, Tuffley, Gloucester
EPC Graph for Atkyns Drive, Tuffley, Gloucester

Similar Properties

SOLDSTC Painswick Road, Gloucester

Painswick Road, Gloucester

£229,950

SOLDSTC Reservoir Road, Gloucester

Reservoir Road, Gloucester

£250,000

SOLDSTC Filbert Close, Abbeydale, Gloucester

Filbert Close, Abbeydale, Gloucester

£250,000

NEW Munsley Grove, Matson, Gloucester

Munsley Grove, Matson, Gloucester

£255,000


instant online valuation

Get a valuation

Find out how much your property is worth