Linden Road, Gloucester

Sold Subject to Contract - Offers in excess of, £235,000

bedrooms 3bathrooms 1receptions 2

Entrance Hall

Accessed via upvc double glazed door,wall mounted radiator, stairs to landing, opening leads off:

Lounge

Television point, data point, power points, wall mounted radiator, front aspect upvc double glazed bay window. Opening leads off:

Dining Area

Power points, wall mounted radiator, space for dining table, rear aspect upvc double glazed window. Door leads off:

Kitchen

Range of base, wall and drawer mounted units, laminate worktop, stainless steel sink with mixer tap over, range cooker point with extractor hood over, space for washing machine, dishwasher and large fridge/freezer, wall mounted radiator, door to under stairs storage, door to pantry, tiled flooring, side aspect Upvc double glazed windows. Opening leads off:

Conservatory

Power points, space for breakfast table, side and rear aspect upvc double glazed windows, rear aspect upvc double glazed french doors leading to garden.

Landing

Access to loft via hatch, doors lead off:

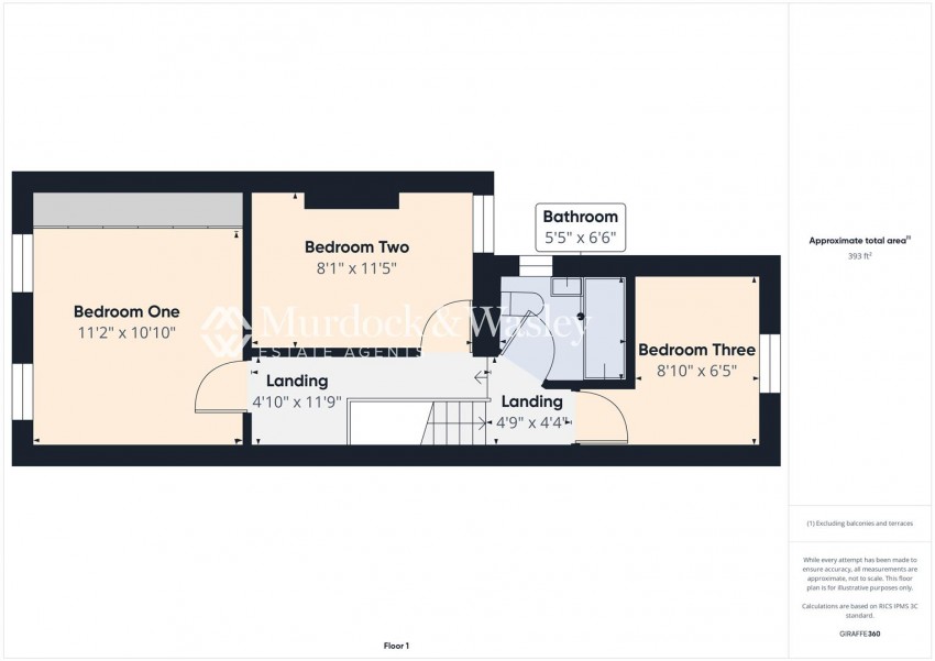
Bedroom One

Power points, wall mounted radiator, built in wardrobe, two front aspect upvc double glazed windows.

Bedroom Two

Power points, wall mounted radiator, rear aspect upvc double glazed window.

Bedroom Three

Power points, wall mounted radiator, rear aspect upvc double glazed window.

Bathroom

Suite comprising low level wc, panelled bath with taps and shower over, pedestal wash hand basin with mixer taps over, partly tiled walls, tiled flooring, side aspect frosted upvc double glazed window.

Outside

To the front of the property a small courtyard garden is enclosed by a low level wall. A shared flagstone path provides access to the rear via a wooden gate.

To the rear of the property a patio leads down to a garden mainly laid to lawn, bordered by flowerbeds, enclose by wooden fencing. At the bottom of the garden a shed and a decked area provides space for garden furniture.

Tenure

Freehold

Services

Mains water, gas, electricity & drainage.

Local Authority

Gloucester City Council
Tax Band: D

Awaiting Vendor Approval

Details are yet to be approved by the vendor and may be subject to change. Please contact the office for more information.

  • Gorgeous Three Bedroom Semi Detached Home
  • Modern Kitchen & Character Features Throughout
  • Private & Enclosed Rear Garden
  • Walking Distance to Linden Primary, Ribston & The Crypt School
  • Walking Distance the Green Spaces Such As Tuffley Park & The Lannet
  • Close Proximity to Local Amnities & Eateries
  • GCH & UPVC Double Glazing Throughout
  • EPC Rating: D
Floorplan for Linden Road, Gloucester
EPC Graph for Linden Road, Gloucester

Similar Properties

SOLDSTC Alma Place, Linden, Gloucester

Alma Place, Linden, Gloucester

£190,000

SOLDSTC Calton Road, Linden, Gloucester

Calton Road, Linden, Gloucester

£200,000

SOLDSTC Calton Road, Gloucester

Calton Road, Gloucester

£210,000

SOLDSTC Stroud Road, Gloucester

Stroud Road, Gloucester

£215,000


instant online valuation

Get a valuation

Find out how much your property is worth