Semi-Detached House with Detached Bungalow

For Sale - Offers in excess of, £600,000

bedrooms 5bathrooms 4receptions 3

Description

Murdock & Wasley Estate Agents are thrilled to present this unique and rare opportunity to the open market: a beautifully renovated 4/5-bedroom semi-detached family home, accompanied by a charming one-bedroom detached bungalow (annexe) situated in a sought-after and popular location. This property offers the perfect blend of comfort, space, and versatility for families seeking a harmonious living arrangement.

This exceptional offering is available with no onward chain, providing an ideal living solution where extended families or loved ones can enjoy living close together while still maintaining their own private spaces. The property is perfect for multigenerational living, offering flexibility and independence for all residents.

The semi-detached house, fully renovated in 2021, boasts a spacious and adaptable interior that can cater to various needs. With generous room sizes and a modern finish, the home is designed to accommodate the dynamic needs of a growing family. Adjacent to the main house is a detached one-bedroom bungalow, currently functioning as an annexe but offering the potential for reconfiguration to provide additional bedroom space if desired. This bungalow has its own council tax band, ensuring its independence as a separate dwelling space while still being close to the main family home.

The property features an expansive driveway with ample off-road parking for up to six vehicles, providing convenience for larger families or multiple occupants. The large garden area offers a perfect space for outdoor living, with a patio suitable for entertaining, dining, or simply enjoying the outdoors. Additionally, there is a mobile home on the property, which could be utilized as extra accommodation, a home office, a studio, or any other purpose that suits the owner’s needs.

We believe this rare and versatile opportunity is perfect for families looking to come together under one roof while maintaining their independence. We invite all interested parties to schedule a viewing and fully appreciate everything this remarkable property has to offer.

Tenure

Freehold

Services

Mains water, gas, electricity and drainage.

Local Authority

Gloucester City Council

Council Tax Bands:
Semi-Detached House: C
Bungalow: A

Awaiting Vendor Approval

These details are yet to be approved by the vendor and may be subject to change. Please contact the office for more information.

  • Four Bedroom Semi-Detached House with One Bedroom Detached Bungalow (Annexe)
  • Popular Location
  • Enclosed Rear Garden
  • GCH & UPVC Double Glazing
  • Driveway For Six Vehicles
  • Rarely Available
  • Mobile Home Included
  • EPC Rating: Semi Detached: C & Annexe: D
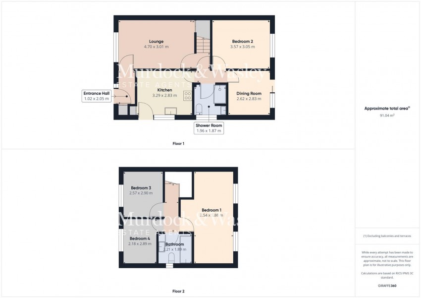
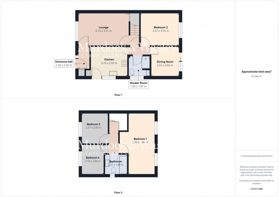
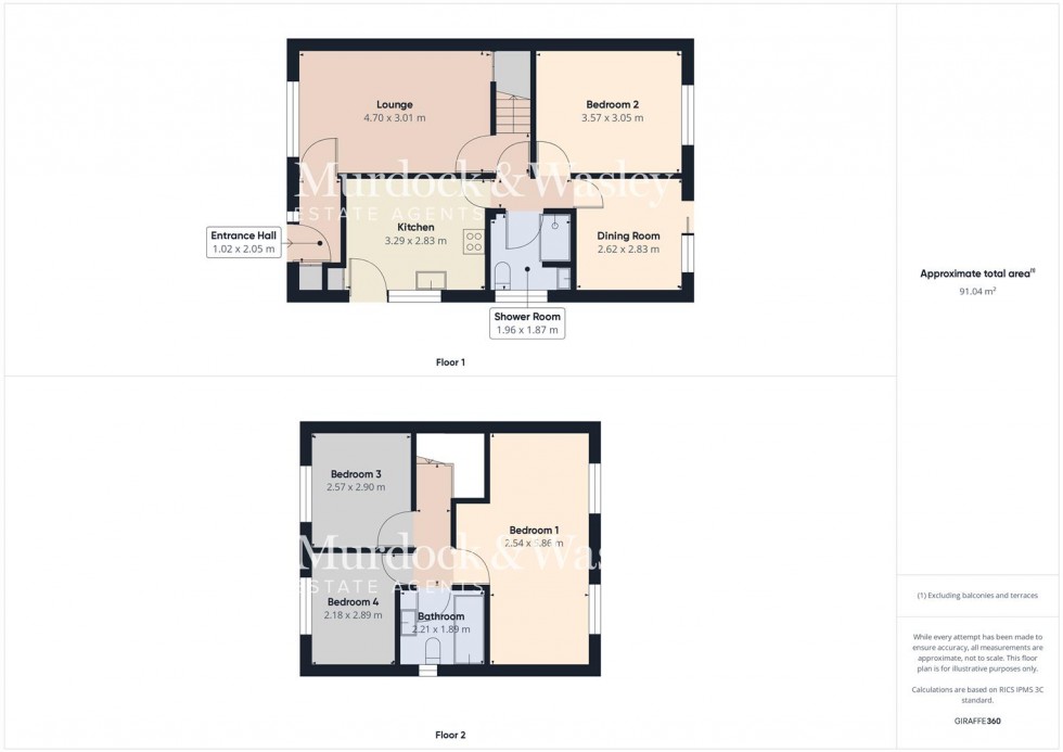
Floorplan for Semi-Detached House with Detached Bungalow Floorplan for Semi-Detached House with Detached Bungalow Floorplan for Semi-Detached House with Detached Bungalow
EPC Graph for Semi-Detached House with Detached Bungalow

Similar Properties

Oxstalls Lane, Longlevens

Oxstalls Lane, Longlevens

£525,000

SOLDSTC Olive Close, Longford, Gloucester

Olive Close, Longford, Gloucester

£650,000


instant online valuation

Get a valuation

Find out how much your property is worth